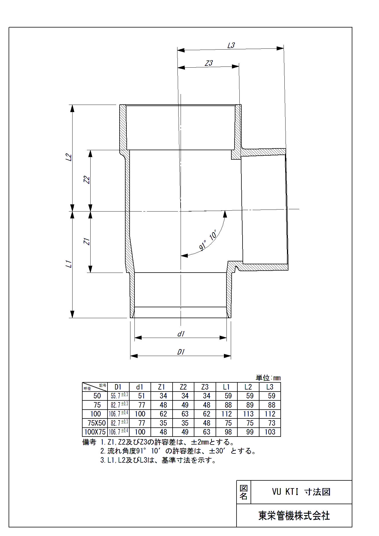
VU特殊継手 片差しチーズ
| サイズ | カラー | 製品番号 | Tコード | 備考 | 入数 | 設計価格(円) |
|---|---|---|---|---|---|---|
| 50 | - | 128490 | VU-KTI_50 | 18 | 771 | |
| 75 | - | 128503 | VU-KTI_75 | 24 | 1,320 | |
| 100 | - | 129003 | VU-KTI_100 | 12 | 2,320 | |
| 75x50 | - | 128996 | VU-KTI_75x50 | 36 | 1,180 | |
| 100x75 | - | 129011 | VU-KTI_100x75 | 14 | 1,980 |
カラーの欄に"-"が表示されている場合、カラーが指定されていない製品になります。写真等でご確認をお願いいたします。
製品写真
主管下流側は、VUパイプ内径接続。
VUパイプ内径に接続できるため、利便性が良く省スペース施工ができます。