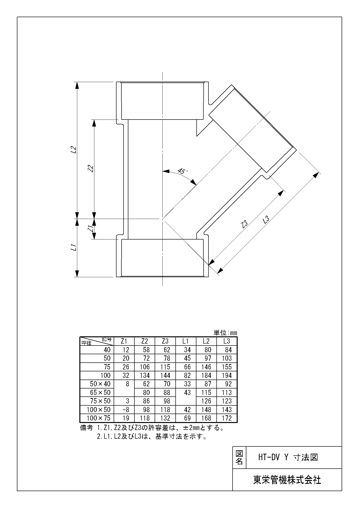
HT-DV継手 45°Y
| サイズ | カラー | 製品番号 | Tコード | 備考 | 入数 | 設計価格(円) |
|---|---|---|---|---|---|---|
| 40 | - | 149942 | HT-DV-Y-40 | (14)/56 | 1,420 | |
| 50 | - | 149969 | HT-DV-Y-50 | 40 | 2,060 | |
| 75 | - | 149985 | HT-DV-Y-75 | 16 | 4,580 | |
| 100 | - | 149993 | HT-DV-Y-100 | 8 | 9,440 | |
| 50x40 | - | 150002 | HT-DV-Y-50x40 | 50 | 1,580 | |
| 65x50 | - | 157074 | HT-DV-Y-65x50 | 26 | 2,950 | |
| 75x50 | - | 152005 | HT-DV-Y-75x50 | 26 | 3,140 | |
| 100x50 | - | 152013 | HT-DV-Y-100x50 | 16 | 5,020 | |
| 100x75 | - | 152021 | HT-DV-Y-100x75 | 10 | 6,860 |
カラーの欄に"-"が表示されている場合、カラーが指定されていない製品になります。写真等でご確認をお願いいたします。
製品写真
業務用厨房機器(スチームコンベクションオーブン、ゆで麺器など)からの排水配管には使用しないでください。
業務用厨房機器(スチームコンベクションオーブン、ゆで麺器など)に使用される業務用洗浄剤には、
HT配管材を侵す成分(有機溶剤など)が含まれている場合が多く、破損、漏水事故に至る恐れがあり、事故も発生しております。