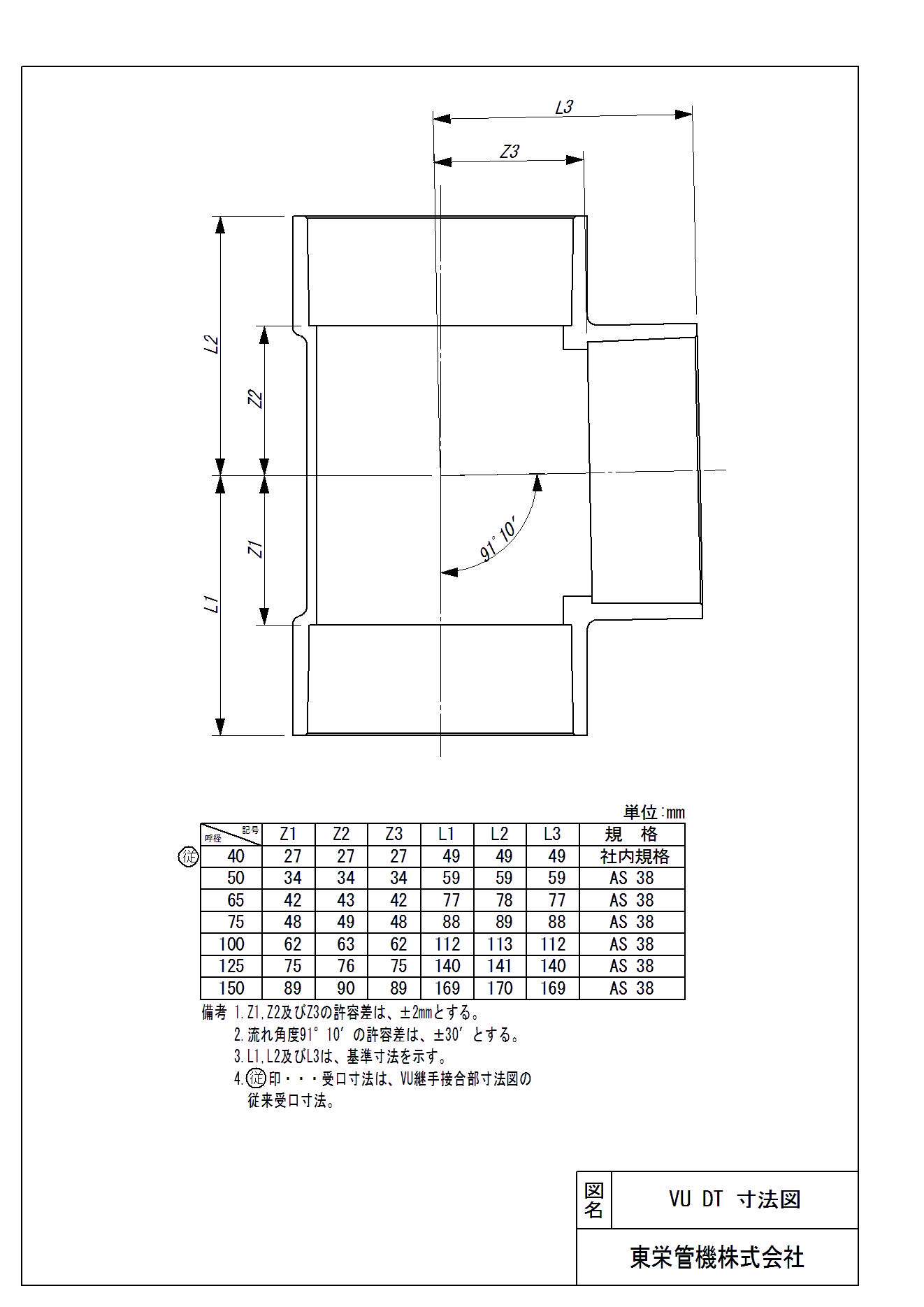
VU継手 90°Y
| サイズ | カラー | 製品番号 | Tコード | 備考 | 入数 | 設計価格(円) |
|---|---|---|---|---|---|---|
| 40 | - | 126012 | VU-DT_40 | 100 | 235 | |
| 50 | - | 120464 | VU-DT_50 | 50 | 376 | |
| 65 | - | 120561 | VU-DT_65 | 24 | 622 | |
| 75 | - | 120146 | VU-DT_75 | 24 | 834 | |
| 100 | - | 120154 | VU-DT_100 | 12 | 1,740 | |
| 125 | - | 120863 | VU-DT_125 | 6 | 3,200 | |
| 150 | - | 120162 | VU-DT_150 | 4 | 5,760 |
カラーの欄に"-"が表示されている場合、カラーが指定されていない製品になります。写真等でご確認をお願いいたします。
製品写真
※屋外排水設備用硬質塩化ビニル管継手(AS38)