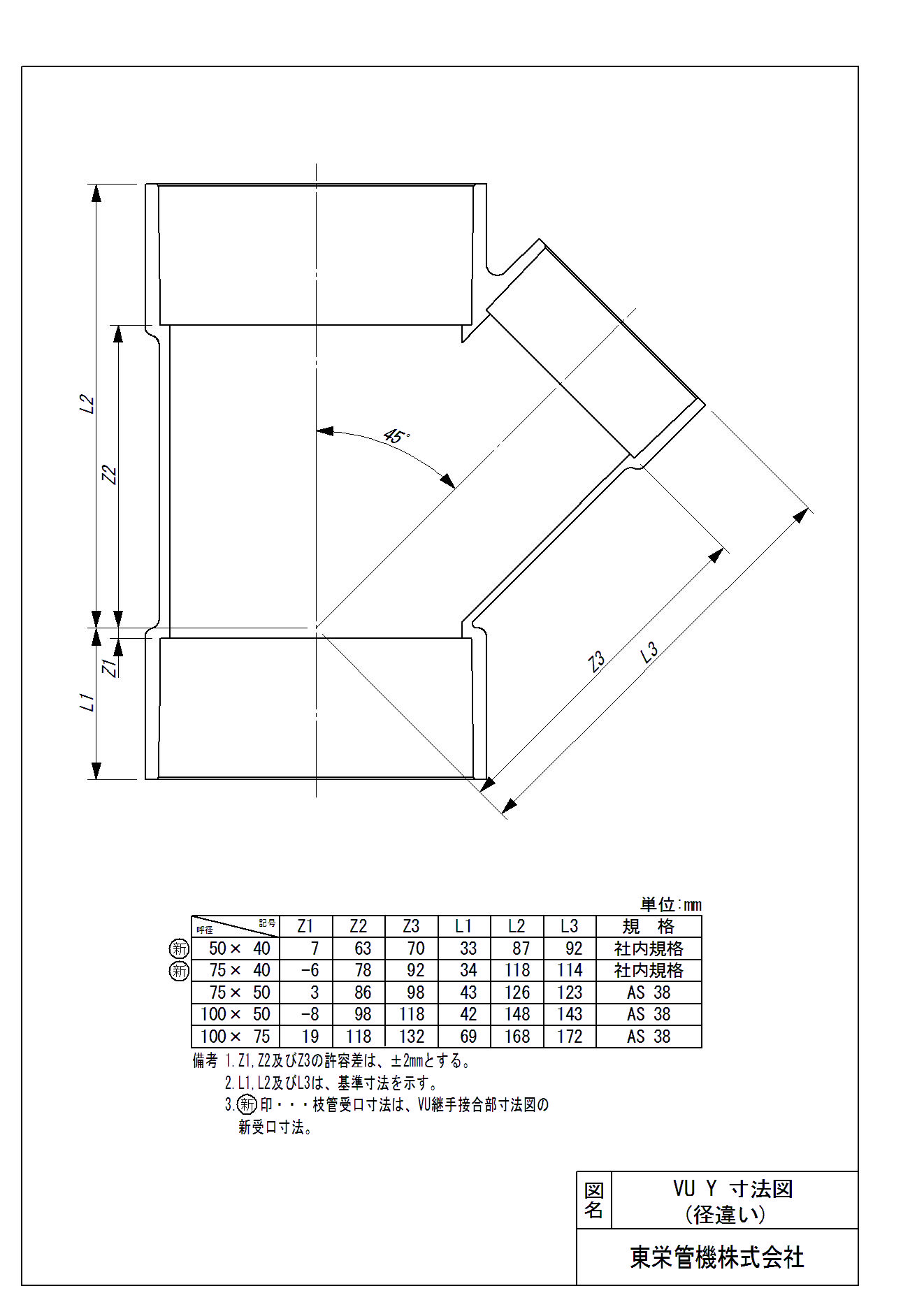
VU継手 径違い45°Y
| サイズ | カラー | 製品番号 | Tコード | 備考 | 入数 | 設計価格(円) |
|---|---|---|---|---|---|---|
| 50x40 | - | 148784 | VU-Y_50×40 | 50 | 342 | |
| 75x40 | - | 148792 | VU-Y_75×40 | 32 | 829 | |
| 75x50 | - | 120600 | VU-Y_75x50 | 26 | 829 | |
| 100x50 | - | 120294 | VU-Y_100x50 | 16 | 1,710 | |
| 100x75 | - | 120308 | VU-Y_100x75 | 10 | 1,710 |
カラーの欄に"-"が表示されている場合、カラーが指定されていない製品になります。写真等でご確認をお願いいたします。
製品写真
※屋外排水設備用硬質塩化ビニル管継手(AS38)